Peter Elliot
""
Today's Headlines:

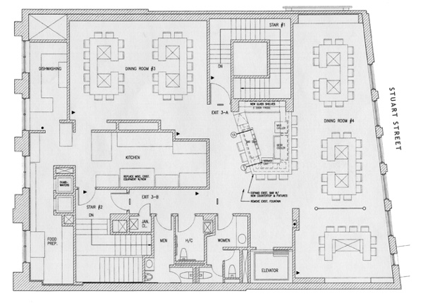
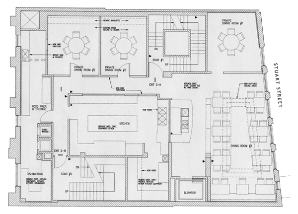
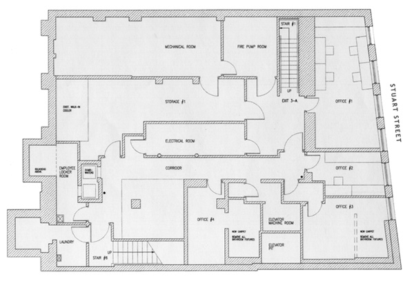
 Jaes Restaurant at 212 Stuart Street
Featured Property
Jaes' Restaurant -- 212 Stuart Street, Boston

As exclusive agent, Peter Elliot LLC is pleased to offer for sale 212 Stuart in Boston, Massachusetts. Currently occupied by Jae's Restaurants this 13,000 square foot structure features four full floors, each with a superior level of interior finish. The building was extensively renovated in 1992, 1995, and again in 1999

For more information contact:
Elliot B. Ravech